七氟丙烷灭火系统使用说明

来源: 金鼎消防 发布日期: 2021.09.24 作者: 金鼎小编 编辑: 金鼎小编 浏览次数:

概述

随着卤代烷(哈龙)灭火设备的逐步淘汰,世界各国普遍关注关于保护大气臭氧层的《维也纳公约》、《蒙特利尔议定书》等国际公约。各种洁净气体灭火设备相继涌现,其中七氟丙烷(FM200)灭火系统快盈500是性能比较优秀的一种。

快盈500 七氟丙烷(FM200)是一种绿色清洁灭火剂,对大气臭氧层无破坏作用,是一种以化学抑制灭火方式为主的气体灭火剂。灭火效能高,对设备无污损,电绝缘性好,灭火迅速,是卤代烷灭火系统较理想的替代物。

快盈500 该系统以全淹没应用方式灭火,可以扑救A(表面火)、B、C类和电器火灾,可用于保护经常有人的场所。主要适用于:电子计算机房、图书馆、电讯中心、地下工程、海上采油平台、档案馆、珍品库、配电房等重点单位的消防保护。

快盈500 内贮压式七氟丙烷灭火系统分为三个级别的增压级(贮存压力):2.5MPa、4.2MPa和5.6MPa,系统管网长、流损大,可选用4.2MPa及5.6MPa增压级;管网短、流损小的,可选用2.5MPa增压级。5.6MPa增压级灭火剂的输送距离更远,更为符合组合分配系统的设计需要。

1七氟丙烷灭火系统 

七氟丙烷灭火系统(贮存压力5.6MPa)由灭火子系统与火灾探测报警子系统组成,两者联动实现对防护区自动探测、报警、灭火保护功能。

1.1灭火系统在工程应用中有两种形式:组合分配系统和单元独立系统。

1.1.1 组合分配系统

组合分配系统是数个灭火剂瓶组组成的一套气体灭火剂储存装置通过管网的选择分配,保护两个或两个以上的防护区的灭火系统,这种应用方式相对经济,强调的是几个防护区不会同时发生火灾。

图片1

图一

1灭火剂瓶组框架 2.灭火剂瓶组容器 3.集流管 4.单向阀 5.高压金属连接软管 6.灭火剂瓶组容器阀7.驱动气体管路 8.压力表  9.连接管  10.先导阀  11.单向阀 12.安全泄放装置 13.选择阀 14.信号反馈装置 15.电磁型驱动装置  16.驱动气体瓶组容器阀17.驱动气体瓶组容器 18.驱动气体瓶组框架 19.火灾报警控制器 20.电气控制线路21.手动控制盒 22.放气指示灯 23.声光报警器 24.喷嘴 25.火灾探测器 26.灭火剂输送管路  27.低泄高封阀

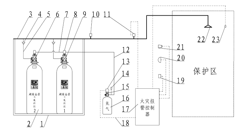
1.1.2单元独立系统

单元独立系统是数个灭火剂瓶组组成的一套气体灭火剂储存装置,通过固定的管道和喷嘴,对一个防护区实施保护的灭火系统。

图片2

图二

1.灭火剂瓶组框架2.灭火剂瓶组容器 3.集流管 4.单向阀 5.高压金属连接软管 6. 压力表  7.连接管 8. 先导阀  9. 灭火剂瓶组容器阀  10.安全泄放装置  11.信号反馈装置 12. 驱动气体管路  13.电磁型驱动装置  14.低泄高封阀 15.驱动气体瓶组容器阀16.驱动气体瓶组容器 17.火灾报警控制器 18.电气控制线路 19.手动控制盒 20.放气指示灯 21.声光报警器 22.喷嘴 23.火灾探测器

快盈500 1.2 适用范围

快盈500 1.2.1七氟丙烷(FM200)广泛适用于下列场所

(1) 贵重珍宝存放地和资料、档案及软硬件贮存中心等场所。

(2) 使用水喷淋系统会造成水损的设施。

(3) 灭火药剂喷放后的残留物消除困难的区域。

(4) 人员经常工作的区域,如电脑房、通讯控制中心。

1.2.2七氟丙烷(FM200)适用于保护以下物质的火灾

快盈500 (1) 电气和电子设备火灾。

快盈500 (2) 可燃液体和可熔化的固体火灾。

快盈500 (3) 固体表面火灾。

(4) 灭火前能切断气源的气体火灾。

1.2.3七氟丙烷(FM200)不适用于保护以下物质的火灾

(1) 硝化纤维,火药等在缺少空气条件下仍能快速氧化的化学物质。

快盈500 (2) 锂、钠、钾、镁、钛、锆、铀、钚等活泼金属。

(3) 金属氢化物,如氢化钾、氢化钠。

(4) 易产生自行分解的化学品,例如某些有机过氧化物和联胺等。

快盈500 1.3主要性能参数

快盈500 工作温度范围(℃)

快盈500 0~+50

快盈500 灭火剂瓶组贮存压力(MPa)

快盈500 5.6

快盈500 灭火剂储瓶容积(L)

快盈500  70,90,120

最大工作压力(50℃,MPa)

 8.0

最小工作压力(0℃,MPa)

 4.6

快盈500 最大喷射时间(S)

快盈500  10

驱动气体瓶组贮存压力(MPa)

 6.0

快盈500 启动电源

 DC24V,1.6A

启动方式

快盈500  自动;电气手动;机械应急手动操作

1.4  工作流程图

图片3

1.4.1启动方式

快盈500     灭火系统的启动方式有三种:自动启动、人工电气启动和机械应急手动操作。

快盈500 ■自动启动

快盈500 将火灾报警控制器上的控制方式选择键拨到“自动”位置时,灭火系统处于自动控制状态。当防护区发生火情,火灾探测器发出火灾信号,火灾报警控制器即发出声、光报警信号,同时发出联动指令,关闭连锁设备,经过一定延时时间(0~30秒可调,此期间防护区人员必须全部撤离),控制器向灭火设备发出灭火指令,电磁型驱动装置动作打开驱动气体瓶组容器阀,释放驱动气体,驱动气体顺序打开相应的选择阀和灭火剂瓶组容器阀,释放灭火剂,实施灭火。

快盈500 ■人工电气启动

快盈500 将火灾报警控制器上的控制方式选择键拨到“手动”位置时,灭火系统处于人工电气控制状态。当防护区发生火情,可按下手动控制盒或控制器上启动按钮即可使火灾报警控制器发出灭火指令,按规定程序启动灭火系统释放灭火剂,实施灭火。在自动启动状态,人工电气手动启动优先。

■紧急停止

快盈500 在上述两种启动方式下,系统在启动延时期间内发现异常情况,仍可终止系统的启动。按下手动控制盒或火灾报警控制器上的紧急停止按钮,即可阻止控制器向灭火设备发出灭火指令,从而终止系统的启动。

快盈500 ■机械应急手动操作

当防护区发生火情,火灾报警控制器不能发出灭火指令(自动启动和人工电气启动失灵),工作人员应采取机械应急手动操作启动灭火系统。

快盈500 操作方法:通过压下电磁型驱动装置上的手柄打开驱动气体瓶组容器阀,释放驱动气体,启动系统实施灭火。若上述操作失效,这时应首先扳动相应选择阀上的手柄,打开选择阀,再按下该防护区的灭火剂瓶组先导阀手动手柄,开启容器阀,释放灭火剂,实施灭火(详见第2章)。

快盈500     2灭火设备及主要零部件

探测、报警、控制及联动设备请参考相关设备厂家的使用说明书,本章详细介绍“金鼎”灭火设备。

七氟丙烷灭火设备快盈500包括:灭火剂瓶组、驱动气体瓶组、单向阀、选择阀(适用于组合分配系统)、电磁型驱动装置、集流管、连接管、喷嘴、信号反馈装置、安全泄放装置、低泄高封阀等。

2.1 型号编制

 示例:QMQ5.6/70N

表示为灭火剂瓶组容积为70L,贮存压力为5.6MPa的内贮压式七氟丙烷灭火设备。

2.2 主要零部件  

快盈500 2.2.1 灭火剂瓶组

图片4

图三

快盈500 ■组成:灭火剂瓶组由灭火剂、充压气体(氮气)、容器(见图三、图五)、容器阀(见图四)和虹吸管等组成。

 主要性能参数

快盈500 型号规格

QMP70/5.6

QMP90/5.6

快盈500 QMP120/5.6

工作温度范围(℃)

0~+50

容器公称容积(L)

快盈500 70

90

快盈500 120

容器公称工作压力(MPa)

5.6

快盈500 瓶组外径D(mm)

快盈500 Φ325

瓶组高度H(mm)

1255

1525

快盈500 1910

容器阀型号规格

快盈500 QRF32/8

快盈500 贮存压力(MPa)

快盈500 5.6

最大工作压力(MPa)

8

快盈500 灭火剂

七氟丙烷

快盈500 最大充装密度(Kg/m³)

1080

容器安全泄放装置的动作压力(MPa)

11±0.55

■用途:灭火剂瓶组平时用来储存七氟丙烷灭火剂,一旦发生火灾,靠先导阀(见图六)开启容器阀,释放灭火剂。瓶组具备超压保护、误喷射防护和压力显示功能。

警告用语:瓶组应设置在阴凉干燥处,防止曝晒和雨淋,防止碰撞,非专业充装单位严禁充装,非专业人员严禁动用阀门。

快盈500 2.2.1.1灭火剂

   七氟丙烷(HFC227ea)的质量应符合GB18614-2012《七氟丙烷(HFC227ea)灭火剂》的要求。

快盈500                     七氟丙烷(FM200)灭火剂物理性能

化学分子式

快盈500 CF3CHFCF3

分子量

170

快盈500 标准大气压下的沸点(℃)

快盈500 -16.4

快盈500 凝固点(℃)

快盈500 -131

快盈500 临界温度(℃)

101.7

临界压力(Kpa)

2912

快盈500 临界体积(CC/mole)

274

临界密度(Kg/m³)

621

20℃时蒸汽压(Bar abs)

快盈500 3.91

20℃时液体密度(Kg/m³)

1407

20℃时饱和蒸汽密度(Kg/m³)

快盈500 31.173

快盈500 20℃,标准大气压时过压蒸汽的比容(m³/kg)

快盈500 0.1373

快盈500 酸度%(m/m)

≤3×10-4

不挥发残余物%(m/m)

≤0.01

快盈500 悬浮物或沉淀物

不可见

2.2.1.2充压气体

 七氟丙烷灭火剂自身的压力不高,氮气作为充压气体为灭火剂喷放提供能量,20℃时充装压力为5.6MPa。氮气的质量应符合GB/T8979-2008《纯氮、高纯氮和超纯氮》的要求。

2.2.1.3容器阀

图片5

图四

主要性能参数

快盈500 型号规格

公称

快盈500 通径

(mm)

公称工作压  力(MPa)

快盈500 水压试验压  力

(MPa)

快盈500 气密性

快盈500 试验压力(MPa)

快盈500  当量长度

(含引升管)(m)

快盈500  安全膜片

爆破压力

快盈500  (MPa)

QRF32/8

32

8

12

8

1.78

快盈500 11±0.55

快盈500 ■用途:容器阀安装在灭火剂容器上,用以密封容器内灭火剂,火灾时,靠先导阀(见图六)顶刀动作打开,释放灭火剂。

快盈500 ■超压保护:当瓶组内部压力达到设计规定动作压力(11MPa±0.55 MPa),膜片式安全泄放装置的泄放膜片将自动爆破,泄放瓶组内气体,达到释放压力保护瓶组安全的目的。

■误喷射防护:误喷射防护帽安装在容器阀出口上,是为了防止容器未得到可靠固定前,避免由于误喷引起容器剧烈移动造成人员伤害或财产损失。

■压力显示:压力表为非持常压压力表,压力表开关用于控制瓶组与压力表的通断。压力表开关平时处于关闭状态,检测气路断开,压力表不能检测瓶组内部压力;打开压力表开关,检测气路接通,压力表显示瓶组内部压力,指针在绿区为正常,检测后应关闭压力表开关。

2.2.1.4容器

图片6

图五

快盈500       主要性能参数

容积

(L)

公称工作

压  力

快盈500  (MPa)

水压强度

快盈500 试验压力

(MPa)

快盈500 气密性

试验压力

快盈500 (MPa)

H

(mm)

快盈500  

D

(mm)

70

8

快盈500 12

8

1090

 

φ325

90

快盈500 1360

快盈500 120

1745

2.2.2 先导阀

图片7

图六

快盈500     主要性能参数

快盈500 型号规格

水压强度试验压力(MPa)

快盈500 气密性试验压力

快盈500 (MPa)

快盈500 手动操作力(N)

快盈500 XDF-8

快盈500 9.9

7.26

≤150

快盈500  ■用途及工作原理

快盈500 先导阀安装在灭火剂瓶组的容器阀(见图四)上,为气动和人工机械操作开启容器阀的执行元件。

气动:驱动气体瓶组释放的驱动气体,进入先导阀后,推动其顶刀下行,刺破容器阀上的密封膜片,打开容器阀,喷放灭火剂。

人工机械操作:拔出保险销,压下手柄使顶刀下行,打开容器阀。

2.2.3 驱动气体瓶组

快盈500 ■组成:驱动气体瓶组是由容器阀(见图八)、容器(见图七、图九)、驱动气体等组成。

图片8

图七

  主要性能参数

快盈500 型号规格

EQP4/6

工作温度范围(℃)

0~+50

快盈500 容器公称容积(L)

快盈500 4

快盈500 容器公称工作压力(MPa)

15

容器外径D(mm)

φ140

瓶组高度H(mm)

快盈500 452

容器阀型号规格

ERF6/6.6

快盈500 贮存压力(MPa)

快盈500 6.0

最大工作压力(MPa)

快盈500 6.6

充装压力(MPa)

6.0(20℃)

快盈500 驱动气体

快盈500 氮气

快盈500 容器安全泄放装置的动作压力(MPa)

8.8±0.44

■用途:驱动气体瓶组平时用来储存驱动气体(氮气),一旦发生火灾,靠电磁型驱动装置开启容器阀,释放驱动气体。瓶组具备超压保护、误喷射防护和压力显示功能。

快盈500 警告用语:瓶组应设置在阴凉干燥处,防止曝晒和雨淋,防止碰撞,非专业充装单位严禁充装,非专业人员严禁动用阀门。

2.2.3.1容器阀

图片9

图八

型号规格

 公称工作

快盈500  压  力

 (MPa)

 水压强度

快盈500  试验压力

快盈500  (MPa)

快盈500  气密性

快盈500  试验压力

快盈500  (MPa)

快盈500 公称通径

 (mm)

快盈500  安全膜片

 爆破压力

 (MPa)

 ERF6/6.6

 6.6

 9.9

快盈500  6.6

 6

 8.8±0.44

主要性能参数

快盈500 ■用途:容器阀安装在容器上,用以密封容器内驱动气体,火灾时,靠电磁型驱动装置顶刀作用打开,释放驱动气体。

快盈500 ■超压保护:当瓶组内部压力达到设计规定动作压力(8.8 MPa±0.44 MPa),膜片式安全泄放装置的泄放膜片将自动爆破,泄放瓶组内气体,达到释放压力保护瓶组安全的目的。

快盈500 ■误喷射防护:误喷射防护帽安装在容器阀出口上,是为了防止容器未得到可靠固定前,避免由于误喷引起容器剧烈移动造成人员伤害或财产损失。

快盈500 ■压力显示:压力表为非持常压压力表,压力表开关用于控制瓶组与压力表的通断。压力表开关平时处于关闭状态,检测气路断开,压力表不能检测瓶组内部压力;打开压力表开关,检测气路接通,压力表显示瓶组内部压力,指针在绿区为正常,检测后应关闭压力表开关。

2.2.3.2容器

图片10

图九

快盈500                              主要性能参数

容积

(L)

快盈500 公称工作

压  力

快盈500 (MPa)

水压强度

试验压力

(MPa)

气密性

试验压力(MPa)

快盈500 L

(mm)

D(mm)

快盈500 连接螺纹

快盈500 4

快盈500 15

快盈500 9.9

6.6

380

快盈500 φ140

PZ27.8

2.2.4 电磁型驱动装置

图片11

图十

                           主要性能参数

快盈500 型号规格

快盈500 工作电压

快盈500 工作电流

驱动力

DQ75

DC24V

1.6A

75N

■ 用途及工作原理:电磁型驱动装置安装在驱动气体瓶组容器阀上,与外接控制设备连接,具有电动和人工机械操作功能。

电动:一旦有启动电流输入,将使其电磁铁动作,顶刀下行刺破驱动气体瓶组容器阀上的密封膜片,容器阀开启,喷放灭火剂。

人工机械操作:拔出保险夹,拍按手柄使顶刀下行,打开容器阀。

快盈500 ■防误操作保险:①保险销的作用是限制顶刀动作,防止各种误操作造成灭火设备的误启动。系统未验收投入正常使用之前,保险销禁止拆除。②保险夹系机械手动限制保险,在系统正常工作状态时,防止人为或机械等误启动灭火设备。非人工机械操作保险夹禁止拆除。

2.2.5 单向阀

2.2.5.1 单向阀QYD32/8

图片12

图十一

快盈500                                 主要性能参数

型 号

公称

通径

快盈500 (mm)

快盈500 公称工作压力

快盈500 (MPa)

快盈500 水压强度试验

快盈500 (MPa)

快盈500 气密性

试验压力

(MPa)

快盈500 开启

快盈500 压力

(MPa)

R

快盈500 D

当量

长度

(m)

QYD32/8

32

8

快盈500 12

8

≤0.2

M48×2

R22

7.43

快盈500 ■用途:安装于集流管与高压连接软管之间,用以控制灭火剂流向。

2.2.5.2 单向阀 EQD4/6.6

图片13

图十二

快盈500 ■用途:安装于驱动气体管路中,用以控制驱动气体流向。

主要性能参数

快盈500 公称通径

 (mm)

快盈500 公称工作压力

 (MPa) 

 水压强度试验压力

快盈500  (MPa)  

 气密性试验压力

 (MPa)

快盈500  开启压力

快盈500  (MPa)

快盈500 4

6.6

9.9

6.6

 ≤0.2

2.2.6 集流管

图片14

图十三

      主要性能参数

公称工作压力

快盈500  (MPa)

快盈500 水压强度试验压力(MPa)

气密性试验压力(MPa)

快盈500 安全泄放装置动作压力

(MPa)

8

快盈500 12

快盈500 8

11±0.55

■用途:集流管用来汇集灭火剂瓶组释放的灭火剂。其径向入口处连接液流单向阀,管路两端焊接法兰,一端配法兰盖,一端与灭火剂输送管或分配管相连。

快盈500 ■超压保护:安全泄放装置安装在集流管上,对管道起超压保护作用。当管道中的压力达到规定动作压力时,安全膜片将自动爆破,泄放管道内气体,达到释放压力的目的。

快盈500 ■型号编制

图片15

快盈500 2.2.7 分配管与连接管

■用途:分配管用于组合分配系统中,入口与连接管连接,其径向出口对应连接各防护区选择阀,通过选择阀控制灭火剂流向。分配管设计压力为8MPa,根据工程需要订制。

连接管是集流管与分配管之间、集流管与集流管之间的连接管道,其设计压力为8MPa,长度、结构形式根据集流管和分配管连接需要确定。

2.2.8 选择阀

图片16

图十四

   主要性能参数

快盈500 型 号

公称通径

mm

公称工作压力

快盈500 (MPa)

快盈500 水压强度试验压力

快盈500 (MPa)

气密性试验压力

(MPa)

D

快盈500  

当量长度

HXZ32/17.2

 32

 17.2

快盈500  

快盈500  

 

 

快盈500  25.8

 

快盈500  

快盈500  

 

快盈500 17.2

Rc11/4

快盈500 2.8

HXZ40/17.2

 40

快盈500 Rc11/2

3.8

快盈500 HXZ50/17.2

快盈500  50

Rc2

快盈500 4.8

快盈500 HXZ65/17.2

 65

快盈500 Rc21/2

8

快盈500 HXZ80/17.2

 80

Rc3

快盈500 11.5

HXZ100/17.2

快盈500  100

快盈500 法兰连接

22.5

HXZ125/17.2

快盈500  125

快盈500 法兰连接

17.5

快盈500 HXZ150/17.2

 150

法兰连接

快盈500 15.5

快盈500 ■用途及工作原理:选择阀用于组合分配系统中,安装在分配管上,一端与所控制防护区的灭火剂输送分支管网相连接,控制灭火剂的流向,平常处于常闭状态,具有气动和人工机械操作开启功能。

快盈500 气动开启:火灾时,驱动气体通过驱动气体管路先后进入选择阀和先导阀,顺序打开选择阀和容器阀(推动转臂使选择阀开启,推动先导阀顶刀使容器阀开启)从而开通防护区灭火剂输送管路、启动灭火剂瓶组释放灭火剂,通过喷嘴喷放实施灭火。

快盈500 人工机械操作开启:板动手柄后,压臂敞开,选择阀开启。

快盈500 2.2.9 信号反馈装置

图片17

图十五

快盈500  主要性能参数

快盈500  型号规格

 公称工作压力  

 (MPa)

水压强度试验压力

快盈500  (MPa)

气密性试验压力

 (MPa)

快盈500 微动开关触点容量

动作压力

(MPa)

快盈500 HXF0.8/17.2

快盈500 17.2

25.8

17.2

DC24V,3A

快盈500 0.8±0.08

快盈500 ■用途及工作原理:信号反馈装置用于传递系统喷放信号,提供的是无源开关信号。信号反馈装置安装在选择阀出口处(组合分配系统中)或集流管(单元独立系统中)上,反馈信号线与灭火控制设备联接。该装置内部微动开关提供一对开关触点,平时触点开路,当相应防护区灭火剂释放时,管路内压力推动其内活塞使微动开关闭合,将喷放信号反馈给火灾报警控制器。

2.2.10 低泄高封阀  

图片18

图十六

主要性能参数

快盈500  型号规格

公称工作压力(MPa)

水压强度试验压力(MPa)

快盈500 关闭压力(MPa)

 EDG0.2/6.6

快盈500 6.6

快盈500 9.9

快盈500 ≥0.2

■用途及工作原理:低泄高封阀具有低压泄漏,高于一定压力自行关闭的功能,安装在每个驱动气体瓶组附近的驱动气体管路上。驱动管路无压或低压时,低泄高封阀为开启状态,当驱动气体瓶组存在慢性泄漏时,微量的泄漏气体能及时从该阀排放,避免驱动气体管路内气

体不断积聚,使灭火系统误动作;一旦驱动气体瓶组启动,大量的驱动气体释放,管路内压力骤然升高,此阀及时关闭,确保驱动气体可靠驱动开启其他阀门。

快盈500 注意:低泄高封阀必须垂直地面向上安装。

2.2.11  喷嘴

图片19

图十七

型号规格

安装螺纹

喷孔面积(mm2)

型号规格

快盈500 安装螺纹

喷孔面积(mm2)

QPT9/15

 

快盈500  

快盈500  

快盈500  1/2

快盈500  40.06

QPT15/25

 

 

 

快盈500  1

 

 111.3

快盈500 QPT10/15

 49.48

QPT16/25

 126.7

QPT11/15

 59.87

快盈500 QPT18/25

快盈500  160.3

快盈500 QPT12/15

 71.29

QPT20/25

快盈500  197.9

QPT13/15

快盈500  83.61

QPT22/25

 239.5

快盈500 QPT14/15

 96.97

QPT24/25

 285.0

QPT15/15

 111.3

QPT26/25

 334.3

快盈500 QPT16/15

快盈500  126.7

QPT20/32

 

 

 

 

快盈500  11/4

 197.9

QPT12/20

快盈500  

快盈500  

快盈500  

快盈500  

 3/4

快盈500  71.29

快盈500 QPT22/32

快盈500  239.5

QPT13/20

 83.61

QPT24/32

快盈500  285.0

QPT14/20

 96.97

QPT26/32

快盈500  334.3

QPT15/20

 111.3

QPT28/32

快盈500  387.8

QPT16/20

 126.7

QPT30/32

 445.1

QPT18/20

 160.3

快盈500 QPT32/32

快盈500  506.5

QPT20/20

快盈500  197.9

快盈500 QPT34/32

 571.7

快盈500 QPT22/20

 239.5

快盈500 QPT40/32

 791.2

快盈500 ■用途:喷嘴安装于管网末端,其用途是按设计要求将灭火剂喷洒到防护区。喷嘴各型号规格应根据工程设计确定,它主要用于扑救封闭空间内的火灾,用于全淹没灭火系统的防护区。

快盈500 警告用语:喷嘴的最大安装高度为6.5m,最小安全使用高度为0.3m,发生火警时,人员应及时撤离防护区,以免喷出的气流造成人身伤害。

快盈500 2.2.12  高压金属连接软管  

图片20

图十九

主要性能参数

 型号规格

 公称通径

 (mm)

快盈500  公称工作压力  

快盈500  (MPa)

 水压强度试验压力

 (MPa)

 气密性试验压力

快盈500  (MPa)

快盈500 QRG32/8

快盈500 32

8

12

8

■用途:高压金属连接软管用于联接灭火剂瓶组容器阀与集流管,起转向连接、输送灭火剂以及减少灭火剂释放时引起的振动等作用。

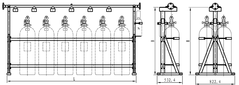
2.2.13灭火剂瓶组框架

图片21

快盈500                                                                       单排                                                                                             双排

图十九

  主要性能参数

快盈500 代号

快盈500 L(mm)

快盈500 H(mm)

宽度(mm)

QK70/D(S)1-5.6

快盈500 690

1565

532.4(单排)

822.4(双排)

 

QK70/D(S)2-5.6

快盈500 1050

快盈500 QK70/D(S)3-5.6

1410

QK70/D(S)4-5.6

快盈500 1770

QK70/D(S)5-5.6

快盈500 2130

QK70/D(S)6-5.6

2490

QK70/D(S)7-5.6

2850

QK70/D(S)8-5.6

快盈500 3210

快盈500 QK90/D(S)1-5.6

快盈500 690

快盈500 1835

快盈500 QK90/D(S)2-5.6

快盈500 1050

QK90/D(S)3-5.6

1410

QK90/D(S)4-5.6

快盈500 1770

QK90/D(S)5-5.6

2130

QK90/D(S)6-5.6

2490

QK90/D(S)7-5.6

快盈500 2850

QK90/D(S)8-5.6

3210

快盈500 QK120/D(S)1-5.6

快盈500 690

2220

快盈500 QK120/D(S)2-5.6

1050

快盈500 QK120/D(S)3-5.6

1410

快盈500 QK120/D(S)4-5.6

1770

QK120/D(S)5-5.6

2130

QK120/D(S)6-5.6

2490

QK120/D(S)7-5.6

快盈500 2850

快盈500 QK120/D(S)8-5.6

3210

注:单元独立系统的驱动气体瓶组固定在灭火剂瓶组框架的任一侧,组合分配系统需要配置驱动气体瓶组框架。

快盈500 ■型号编制

图片22

快盈500 ■ 用途:用来固定灭火剂瓶组和集流管,根据用户要求可任意组合。

快盈500 2.2.14 驱动气体瓶组框架  

图片23

图二十

■型号编制

图片24

快盈500 ■用途:用来固定驱动气体瓶组和分配管,根据用户要求可任意组合。

快盈500 ■驱动气体瓶组框架长度L根据工程采用选择阀的多少和大小进行确定,具体以实物为准。双排驱动气体瓶组框架是用于主备灭火系统。

快盈500 3.2.15管道连接件

快盈500 管路连接件材料为20钢,内外表面镀锌,水压强度试验压力为12MPa。

 3安装调试

    火灾探测、报警及控制设备安装调试应遵循GB50166《火灾自动报警系统施工及验收规范》要求,参照厂家的使用说明书进行。

灭火设备的安装应遵循GB50263《气体灭火系统施工及验收规范》要求,结合“金鼎”七氟丙烷灭火设备特点进行。

灭火设备的施工应由有资质的单位承担,负责安装调试的人员应经过专门培训,掌握系统工作原理、使用操作方法、零部件性能等知识,并有一定的实践经验。

快盈500 3.1施工准备

快盈500     施工单位应严格按照设计要求进行施工安装,在施工前,以下几个方面的问题应得到落实。

快盈500 3.1.1技术资料准备

■设计施工图、设计说明书、主要部件的使用维护说明书等是否完备;

■设备的合格证、检验报告等质量证明文件是否齐全。

3.1.2主要设备和材料检查

快盈500 ■各组成零部件的外观质量;

■对照铭牌,规格型号是否符合要求;

快盈500 ■检测灭火剂瓶组、驱动气体瓶组压力,压力表指针在绿区为正常,操作说明如下:

快盈500 ■瓶组压力检测:逆时针方向缓慢旋松0.5~1圈压力表开关,压力表指针将摆动到最后停止不动,该位置读数即为瓶组内部实时压力值。检测完毕,必须顺时针方向旋紧该压力表开关,以防止压力表长期受压疲劳而泄漏。

快盈500 ■电磁型驱动装置和先导阀是否动作可靠。

快盈500 3.1.3防护区和瓶组间的检查

■防护区的位置、大小、可燃物质、维护构件性能、门窗设置、开口情况是否与设计相符;

■瓶组间的大小、位置、环境温度、承载能力是否符合设计要求。

快盈500 3.2主要设备安装

3.2.1瓶组框架

■按设计要求,安装灭火剂及驱动气体瓶组框架。

■瓶组框架牢固固定在地面上,必须打地脚螺栓,各连接部件安装牢固防止震动和移位。

■应留有足够的操作空间,使操作面距墙或两操作面之间的距离不宜小于1m。

3.2.2灭火剂瓶组

■瓶组固定在瓶组框架上,固定牢固,排列整齐;

快盈500 ■瓶组上手动操作手柄应朝向操作面;

■对瓶组进行编号

快盈500 ■误喷射防护帽出厂时配装,以避免瓶组在转运期间各种原因导致的误喷放造成安全事故,因此瓶组未联接管路前或维修检查需断开管路时应安装该防护帽,拆下的防护帽应注意保存和保管。

3.2.3驱动气体瓶组

快盈500 ■瓶组固定在瓶组框架上,固定牢固;

■电气连接线应沿瓶组架或墙面固定,防止其他物体碰撞;

快盈500 ■气体驱动管路布置应横平竖直,采用支架固定;

快盈500 ■低泄高封阀必须垂直地面向上安装;

■气体驱动管路安装完毕,应进行气密性能试验,试验压力为6.0MPa,压力保持5min不泄漏;

■误喷射防护帽出厂时配装,以防止瓶组在转运期间各种原因导致误启动容器阀造成安全事故,因此瓶组未联接管路前或维修检查需断开管路时应安装该防护帽,拆下的防护帽应注意保存和保管。

快盈500 ■安装完毕,驱动气体瓶组正面应标明对应防护区名称或编号。

快盈500 3.2.4电磁型驱动装置

    为确保安全,防止误喷,电磁驱动装置应在系统验收合格之后安装,拔出保险销方能正常使用。

3.2.5先导阀

快盈500     为确保安全,防止误喷,系统投入使用之前,先导阀必须带保险销进行试安装。

快盈500 3.2.6集流管及连接管

■集流管安装在瓶组架上,调整位置后固定牢靠;

快盈500 ■带安全泄放装置的集流管,泄压口不应朝向操作面、走道和门等,以免泄压时对人员造成伤害。

3.2.7选择阀

■安装高度不宜超过1.7m,其手动操作杆应朝向操作面;

■安装完毕,在操作杆附近标明防护区名称或编号的永久性标志。

快盈500 3.2.8喷嘴

快盈500 ■外露部分应美观,连接螺纹不应露出吊顶;

■安装时应逐个核对型号、规格和喷洒方向,严格按设计要求。

快盈500 3.2.9管道

快盈500 3.2.9.1管道安装

快盈500 ■管道采用焊接连接时,应对损坏的镀锌层进行防腐处理;

■管道穿墙或楼板处应安装套管;

快盈500 ■三通分流进出口应水平安装;

■管道应固定牢固,支架、吊架的设置和间距应符合规范的规定。

3.2.10.2管道吹扫、试验和涂漆

快盈500    管道安装完成后,应进行水压强度、气密性能试验应按GB50263-2007《气体灭火系统施工及验收规范》中附录E执行,合格应进行吹扫、涂漆。

快盈500 3.3调试

快盈500    灭火系统的调试应在与之相关的探测、报警和控制系统及其联动设备调试完毕后进行。

快盈500    安装调试应对所安装的设备及安装质量进行检查,检查各保险措施避免误操作导致误喷放,确保人员安全。

  调试主要内容:模拟喷放试验和备用瓶组切换试验均应按GB50263-2007《气体灭火系统施工及验收规范》中附录E相关条款执行。

快盈500 4使用、维护和保养

七氟丙烷灭火系统的正确使用、维护和保养是使其在关键时刻发挥作用的保障。用户应建立健全系统维护保养管理制度,并严格执行。使用、维护和保养人员应经过专门培训,掌握系统及其部件工作原理、使用操作方法。

快盈500 4.1使用

快盈500     灭火系统启动方式有三种:自动启动、人工电气启动和机械应急操作。

快盈500 为避免造成不必要的损失,在有人值守的情况下,建议采用人工电气启动方式。

4.1.1自动启动

在自动启动模式下(参见第1章),七氟丙烷灭火系统自动对防护区进行探测和报警,不需要人为介入即可自行启动灭火设备。在启动延时过程中,如果发现异常情况(误报警、人员没有及时撤离),需停止启动灭火系统,可人为按下防护区门口的紧急停止按钮或灭火控制器上的紧急停止按钮。

4.1.2人工电气启动

快盈500 在人工电气启动模式下(参见第1章),七氟丙烷灭火系统只能对防护区进行探测和报警,不能自行启动灭火设备。需要人工按下火灾报警控制器面板上手动启动按钮或防护区门外手动启动按钮,火灾报警控制器接受启动命令按预定程序启动灭火设备。

4.1.3机械应急操作

机械应急操作在电动(自动和人工电气启动)失灵的情况下不得已采取人工直接启动的模式,启动前,可能没有声、光报警,不会延时启动,操作人员必须先确认防护区内人员全部撤离,通风机构和门窗关闭方可进行该操作。

快盈500 机械应急操作有两种情况:直接启动驱动气体瓶组和直接开启相应阀门。

快盈500 ■ 直接启动驱动气体瓶组:

快盈500 ⑴ 确定防护区相应的驱动气体瓶组;

⑵ 抽出对应驱动气体瓶组上的电磁驱动装置保险夹,拍下手柄即可启动灭火设备实施灭火。

■ 直接开启阀门

快盈500 需要操作人员手动开启相应的选择阀和灭火剂瓶组的容器阀方能使灭火设备动作,实施灭火。按以下顺序进行:

⑴ 确定防护区相对应的选择阀(组合分配系统)和灭火剂瓶组;

⑵ 开启选择阀:打开手柄,敞开压臂,即可将选择阀打开;

⑶ 启动灭火剂瓶组:拔出先导阀上保险销,压下手柄即可打开容器阀,启动灭火设备实施灭火。

4.2维护和保养

快盈500     为了使设备保持良好的工作状态,必须进行常规和定期检查、保养。

快盈500 4.2.1常规检查

常规检查每周进行一次,检查的主要内容如下:

■储瓶间的清洁状况,不允许堆放其他杂物,影响设备的操作,冬季和夏季应检查室内温度是否在0℃~+50℃之间;

■检查驱动气体瓶组压力,压力表指针是否在绿区的正常工作区间内,否则请速与我公司联系;

快盈500 ■检查灭火剂瓶组的压力,压力表指针是否在绿区的正常工作区间内,否则请速与我公司联系;

快盈500 ■检查各种阀门是否完好无损,是否处于正常工作状态;

快盈500 ■检查瓶组及框架的固定是否牢固可靠;

快盈500 ■检查管道有无松脱、碰撞和严重腐蚀;

快盈500 ■检查防护区内通道是否畅通,有无变化(有新的开口、结构有无变化等),火灾探测器、喷头的清洁状况。

4.2.2定期检查和保养

定期检查和保养应由我公司或专业的消防公司来进行,每年至少检修一次,检查的主要内容有:

4.2.2.1电磁型驱动装置

快盈500 ■驱动装置与控制设备的接线是否牢固、可靠;

快盈500 ■取下驱动装置,检查其是否可靠动作;

4.2.2.2驱动气体瓶组及驱动气体管路

■检查容器是否超过使用期限,容器每5年检验一次;

■检查瓶组的压力是否处于正常范围;

快盈500 ■检查驱动气体管路的完好性,连接部位应无松动现象,对有松动、损伤的部位进行更换,必要时进行气密性能试验。

4.2.2.3灭火剂瓶组

■卸下灭火剂瓶组上先导阀,检查其是否能可靠动作;

■检查容器是否超过使用期限,容器每5年检验一次;

■检查瓶组的压力是否处于正常范围;

■检查安全泄放装置有无堵塞现象。

4.2.2.4管道及分配系统

■检查管道及管路附件有无变形、损伤和腐蚀现象;

■检查管道和集流管上的安全泄放装置、单向阀、选择阀的安装位置、方向是否正确,连接是否牢固可靠,安全泄压口是否畅通;

■每5年可进行管网强度试验和气密性试验;

■检查管道固定是否牢靠。

快盈500 4.2.2.5喷嘴

■检查喷嘴与管道的连接是否牢固;

快盈500 ■检查喷嘴是否畅通,有无堵塞现象。

快盈500 4.2.3 设备灭火启用后的恢复。

设备启动释放灭火剂后,应立即通知我公司对设备进行全面检修和恢复,主要对下列部件进行检查复位后,正确安装(安装调试见第3章),连接牢固可靠,方可继续使用。保养、检查和试验必须做好详细记录以备查。

■信号反馈装置复位;

快盈500 ■检查电磁型驱动装置是否完好,并复原;

快盈500 ■驱动气体瓶组检测和驱动气体充装;

■检查先导阀是否完好,并复原;

■灭火剂瓶组检测和灭火剂充装;

■选择阀复位;

■单向阀复位;

■检查各管路连接处,保证连接的牢固和密封。

快盈500   5安全要求

5.1 对防护区的和瓶组间的要求

■防护区内应设有疏散通道和安全出口,使防护区内的人员能在30s内撤离;

■防护区内的疏散通道和安全出口,应设置应急照明装置和疏散灯光指示标志,防护区内应设置火灾和灭火剂释放的声光报警器,并在每个入口处设置光报警器(放气指示灯)和警告牌;

快盈500 ■防护区的门应向外开启,疏散出口的门必须能从防护区内打开;

快盈500 ■灭火后,防护区应通风换气,当防护区内氧气浓度低于18%时,人员不允许进入防护区。

■瓶组间环境温度为:0℃~+50℃,并保持干燥和通风良好;

■瓶组间的出口应直接通向室外或疏散通道;

■瓶组间不允许无关人员进入;

■瓶组间门口设置警告牌;

快盈500 ■经过有爆炸危险和变电、配电场所的管网,以及布设在以上场所的金属箱体等,应设防静电接地。

快盈500 5.2对运输、搬运和储存的要求

快盈500 ■瓶组属于压力容器,应严格遵守危险品运输条例规定;

■运输、搬运过程中,应轻装轻卸,防止碰撞、倒置;

■瓶组应避免接近热源,禁止太阳暴晒。

快盈500 5.3对施工、使用和维护的要求

■ 瓶组应固定牢靠,瓶组架必须用地脚螺栓紧固;

■ 电磁型驱动装置上的保险销在设备未交付使用前不得拆除,以免发生误喷事故;

快盈500 ■ 各手动操作的保险装置在手动操作时方能拆除,以免发生误操作和误喷事故;

■对于设计中设置备用灭火剂瓶组的灭火设备,平时主灭火剂瓶组驱动气体管路上的闸阀应保持开启状态,备用瓶组驱动气体管路上的闸阀应保持关闭状态。当灭火设备启动后进行恢复时,应先关闭主灭火剂瓶组的驱动气体管路上的闸阀,拧松该闸阀远离灭火剂瓶组一端的六角螺母,将驱动气体管路里的剩余驱动气体排尽,再拧紧该六角螺母,打开备用灭火剂瓶组驱动气体管路上的闸阀,并使其保持开启状态。

快盈500 ■ 灭火剂及驱动气体的充装应由本公司或本公司授权的专业公司进行。

快盈500                                                           

咨询热线

400-178-2088
点击展开
88爱彩 - 欢迎您 名贯彩票-大发精准计划 美彩国际7709 美彩国际 - 欢迎您 德彩网 - 欢迎您 億彩网 - 首页 79991cm德彩网 美彩国际 - 欢迎您